21506 GRAY TERN COURT, Lutz, FL 33549

  • $289,900

Description

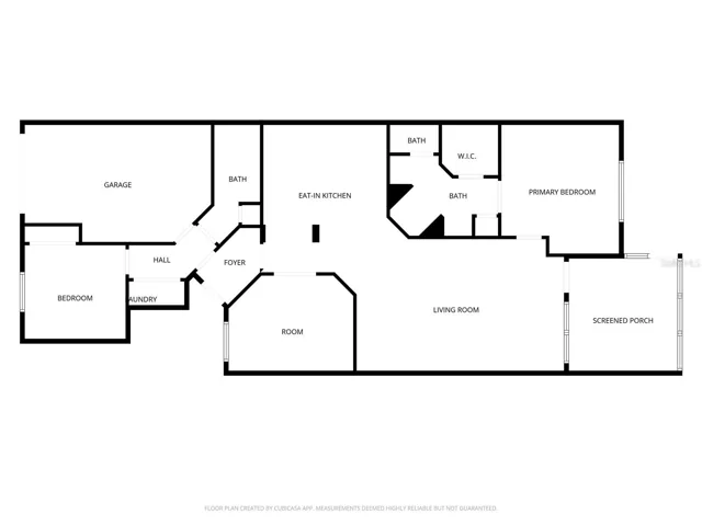
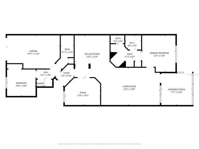
MAINTENANCE-FREE VILLA –LOW HOA and No flood insurance required in this X zone. Welcome to this adorable and well-maintained 2-bedroom + den/office villa offering 1,288 sq. ft. of comfortable living space, perfectly situated on a quiet cul-de-sac in a tucked-away neighborhood surrounded by serene lakes in the desirable community of Lake Heron. . This home features a desirable split-bedroom floor plan, providing privacy and functionality, along with a versatile den that can easily be converted into a 3rd bedroom. The spacious interior showcases cathedral ceilings, architectural archways, plant shelves, and textured walls, creating character and charm throughout. The bright and airy living room is enhanced by skylights and a mirrored accent wall, bringing in natural light and an open feel. The kitchen offers abundant cabinet storage, decorative display shelving, rope lighting for added ambiance, a convenient breakfast serving area, and an eat-in space perfect for casual dining. Enjoy indoor-outdoor living with an enclosed back patio just off the family room—ideal for relaxing or entertaining. The primary bedroom is spacious and comes with its own bathroom with dual vanity, enclosed shower, private water closet and a walk in closet. Additional highlights include:New Lennox HVAC system, Tile flooring throughout for easy maintenance 1-car garage with additional parking for up to 3 vehicles Security system for added peace of mind Residents enjoy fantastic community amenities including a sparkling pool, tennis courts, and a clubhouse—perfect for social gatherings and an active lifestyle. There is also a dedicated storage lot available for work vehicles, trailers, and RVs, offering added convenience rarely found in villa communities. Location is everything, and this home delivers! Conveniently located near major highways for easy commuting, and just minutes from premier shopping, dining, and entertainment at Tampa Premium Outlets and The Shops at Wiregrass. Grocery stores, retail shops, and everyday conveniences are all nearby. This charming villa is priced to sell and offers low-maintenance living in a highly desirable area—don’t miss your opportunity!

  • Address: 21506 GRAY TERN COURT
  • City: Lutz
  • State/county: FL
  • Zip/Postal Code: 33549
  • Country: US

Details

Atualizado em abril 26, 2026 no 1:34 am
  • Property ID W7885096
  • Price $289,900
  • Property Size 1716 m²
  • Land Area 0.07 m²
  • Bedrooms 2
  • Bathrooms 2
  • Garage 1
  • Garage Size x x
  • Year Built 1997
  • Property Type Villa, Residential
  • Property Status Active, For Sale

Additional details

  • Listing Terms Cash,Conventional,FHA,VA Loan
  • Association Fee 259
  • Roof Shingle
  • Utilities Public
  • Sewer Public Sewer
  • Cooling Central Air
  • Heating Central,Electric
  • Flooring Carpet,Tile
  • County Pasco
  • Property Type Residential
  • Community Features Association Recreation - Owned,Clubhouse,Deed Restrictions,Pool,Sidewalks,Tennis Court(s)

Features

Mortgage Calculator

Similar Listings

Compare listings

Comparar