7601 THUNDERHEAD STREET, Wesley Chapel, FL 33544

  • $825,000

Description

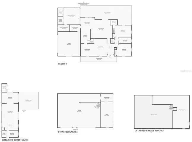
Set on over an acre in the established and centrally located Quail Hollow community, this
property includes a 3-bedroom, 2-bath, 2-car garage updated main home with a 2024 roof, a fully
permitted 1-BED 1-BATH detached apartment, and a 32×52 GARAGE WITH OFFICE SPACE, all surrounding a sparkling
pool oasis. Mature landscaping and a covered front porch with BRAND NEW beautiful doors that welcome you into the main home with
an updated interior and a practical layout, creating a comfortable flow for cozy nights at home or
entertaining. Near the entryway, the combined living and dining areas feature updated lighting
and a bright, open feel. Just beyond, the family room is highlighted by high ceilings, wood
flooring, and a wood-burning fireplace with stone detail and a wood mantle. French doors open
to the pool, and the space connects directly to the kitchen. Overlooking the family room, the
chef’s kitchen is equipped with a brand new range and stainless steel appliances, granite countertops, a backsplash,
breakfast bar seating, a large walk-in pantry, and an eat-in dinette. An oversized laundry room is
located nearby for convenience! Set apart from the secondary bedrooms, the primary suite
includes French door access to the pool, two walk-in closets, and an ensuite bathroom with dual
sinks and a glass-enclosed walk-in shower. Across the home, two guest bedrooms are positioned
near the second full bathroom, complete with a tub and shower combination and decorative tile.
Notable upgrades include a 2024 roof, an electric gate, a tankless water heater, and hurricane wind-rated
doors, and the property is fully fenced! Adding immediate value, the detached apartment offers
strong income potential or space for multi-generational living. Previously rented for $1,600 per
month, it features a kitchenette, a full bathroom, an open living area that connects to a bonus
room, and multiple sliding doors that lead out to the pool deck and covered patio. It even has its
own laundry facilities! Positioned toward the rear of the property, the 32×52 garage is built for
function with a 12-foot two-car electric door and a 14-foot roll-up door. A 20-foot peak height
allows for oversized storage, while a second-story loft and temperature-controlled office add
even more usable space. Imagine having everything you need set on a beautiful piece of property
and spending days under the sun in the swimming pool, appreciating it all! Several covered
seating areas, a paver pool deck, a decorative pond with water features, and tropical landscaping
truly set a scene for the ultimate in Florida living. Positioned just a short drive from local
hotspots including The Krate, The Grove, Target, Tampa Premium Outlets, medical facilities
including the soon-to-open Johns Hopkins Children’s Hospital, local restaurants, major highways
for commuter convenience, and zoning for Cypress Creek Middle and High School- this is one
you do not want to miss. Call today for your private tour!

  • Address: 7601 THUNDERHEAD STREET
  • City: Wesley Chapel
  • State/county: FL
  • Zip/Postal Code: 33544
  • Country: US

Details

Atualizado em abril 16, 2026 no 10:58 pm
  • Property ID TB8496123
  • Price $825,000
  • Property Size 4296 m²
  • Land Area 1.08 m²
  • Bedrooms 4
  • Bathrooms 3
  • Garages 5
  • Garage Size x x
  • Year Built 1981
  • Property Type Single Family Residence, Residential
  • Property Status Active, For Sale

Additional details

  • Listing Terms Cash,Conventional,FHA,VA Loan
  • Roof Shingle
  • Utilities BB/HS Internet Available,Electricity Connected
  • Sewer Septic Tank
  • Cooling Central Air
  • Heating Central
  • Flooring Carpet,Laminate,Tile,Wood
  • County Pasco
  • Property Type Residential
  • Pool Gunite,In Ground,Salt Water
  • Parking Boat,Garage Faces Side,Other,Oversized
  • Elementary School Quail Hollow Elementary-PO
  • Middle School Cypress Creek Middle School
  • High School Cypress Creek High-PO
  • Community Features Golf Carts OK,Horses Allowed

Mortgage Calculator

360° Virtual Tour

Similar Listings

Compare listings

Comparar