15
  • Property Type
  • Single Family Residence, Residential
  • 2
  • Bedrooms
  • 2
  • Bathrooms
  • 1489 Sqft
  • Area Size

24 LILAC DRIVE, Debary, FL 32713

  • $334,999

Description

Buyer Perk: 1% lender credit toward closing costs or rate buy-down available. Ask for details! Welcome to 24 Lilac Drive in DeBary, a well-maintained home with major updates already completed and added flexibility for the right buyer. Within the last 5 years, improvements include the roof, well, water softener, AC system inside and out, pool resurfacing, pool deck pavers, and a beautifully remodeled kitchen with granite countertops and stainless steel appliances. Buyers can move forward with confidence knowing the big-ticket items have already been addressed.
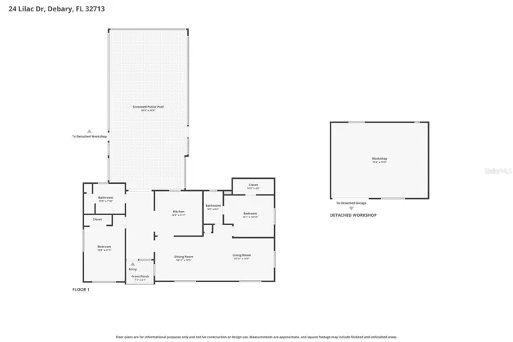
Offering 1,158 square feet, this home is currently configured as a 2 bedroom, 2 bathroom with a spacious layout, indoor laundry, and comfortable living in an established neighborhood just minutes from SunRail, shopping, dining, and I-4. Seller is willing to convert the home to a 3 bedroom, 2 bathroom with an acceptable offer, creating even more value and flexibility. Refer to the last picture for layout.
Step outside to your own private backyard retreat featuring a resurfaced pool, updated paver deck, and full vinyl fencing for added privacy. A double gate and gravel drive provide rear access with plenty of room for boat parking, RV storage, trailers, or extra vehicles.
The detached shop is a standout feature, complete with air conditioning, power, water, and drainage. Whether you need a workshop, hobby space, business setup, or extra storage, this versatile space adds real function and value to the property.
With no HOA, no flood zone, and septic already in place, this property offers both convenience and freedom. 24 Lilac Drive delivers move-in-ready comfort, strong updates, and the kind of usable extra space that is getting harder to find in DeBary.

  • Address: 24 LILAC DRIVE
  • City: Debary
  • State/county: FL
  • Zip/Postal Code: 32713
  • Country: US

Details

Atualizado em abril 20, 2026 no 5:10 pm
  • Property ID V4948346
  • Price $334,999
  • Property Size 1489 m²
  • Land Area 0.29 m²
  • Bedrooms 2
  • Bathrooms 2
  • Garage Size x x
  • Year Built 1954
  • Property Type Single Family Residence, Residential
  • Property Status Active, For Sale

Additional details

  • Listing Terms Cash,Conventional,FHA,VA Loan
  • Roof Shingle
  • Utilities Cable Available,Electricity Connected,Water Connected
  • Sewer Septic Tank
  • Cooling Central Air
  • Heating Central
  • Flooring Ceramic Tile,Luxury Vinyl
  • County Volusia
  • Property Type Residential
  • Pool In Ground,Screen Enclosure

Features

Mortgage Calculator

360° Virtual Tour

Similar Listings

Compare listings

Comparar