41
  • Property Type
  • Single Family Residence, Residential
  • 4
  • Bedrooms
  • 3
  • Bathrooms
  • 2
  • Garages
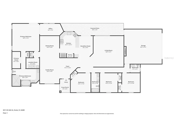
  • 3624 Sqft
  • Area Size

3911 SE 44TH STREET, Ocala, FL 34480

  • $549,000

Description

Under contract-accepting backup offers. One or more photo(s) has been virtually staged. Discover your own slice of paradise in Ocala, FL with this stunning 4-bedroom, 2.5-bathroom home, offering 2,624 square feet of beautifully updated, sun-filled living space on 1.39 acres. From the moment you arrive, a private gated entrance and fully fenced grounds set the tone for country living at its finest, complete with A-1 General Agriculture zoning and plenty of room for hobbies, gardening, or simply enjoying the wide-open outdoors. Inside, the home has been thoughtfully refreshed with new tile flooring throughout, updated baseboards, and a full interior repaint, creating a clean, modern feel. Soaring vaulted ceilings and abundant natural light enhance the open layout, while the cozy family room with a stone wood-burning fireplace invites relaxed evenings at home. The kitchen is equipped with newer appliances, including a refrigerator, microwave and dishwasher making everyday living both stylish and convenient. The primary suite is a true retreat, now featuring a newly added flex space—perfect for a private office, nursery, or sitting room. French doors lead directly to the backyard oasis, while the en suite bath offers a spa-like experience with a large vanity, soaking tub, and oversized walk-in shower. Additional bathrooms have been tastefully updated, including a remodeled half bath and full bath, adding to the home’s move-in-ready appeal. Major system upgrades provide peace of mind, including a full replumb to PEX piping, two new water heaters, a whole-house Aquasana water filtration system with softener, a new well water pump, and an updated sprinkler system to keep the grounds lush year-round. Step outside to a backyard retreat designed for both entertaining and relaxation. The custom in-ground pool is surrounded by newly installed tile across the pool deck while the expansive patio and mature trees create a private, serene setting. Whether it’s morning coffee by the pool or weekend gatherings with friends and family, this outdoor space captures the essence of country living. All of this comes while keeping you connected to modern conveniences—restaurants, shopping, grocery stores, and major highways are just minutes away. This home offers the perfect balance of peaceful, upgraded country living with everyday accessibility, making it a rare gem in Ocala. Mortgage savings may be available for buyers of this listing.

  • Address: 3911 SE 44TH STREET
  • City: Ocala
  • State/county: FL
  • Zip/Postal Code: 34480
  • Country: US

Details

Atualizado em abril 18, 2026 no 4:05 pm
  • Property ID O6394064
  • Price $549,000
  • Property Size 3624 m²
  • Land Area 1.39 m²
  • Bedrooms 4
  • Bathrooms 3
  • Garages 2
  • Garage Size x x
  • Year Built 1988
  • Property Type Single Family Residence, Residential
  • Property Status Pending, For Sale

Additional details

  • Listing Terms Cash,Conventional,FHA,VA Loan
  • Roof Shingle
  • Utilities Cable Available,Electricity Connected
  • Sewer Septic Tank
  • Cooling Central Air
  • Heating Central,Electric
  • Flooring Tile
  • County Marion
  • Property Type Residential
  • Pool In Ground
  • Parking Driveway,Garage Door Opener
  • Elementary School South Ocala Elementary School
  • Middle School Osceola Middle School
  • High School Forest High School

Mortgage Calculator

360° Virtual Tour

Similar Listings

Compare listings

Comparar