47
  • Property Type
  • Single Family Residence, Residential
  • 3
  • Bedrooms
  • 3
  • Bathrooms
  • 3
  • Garages
  • 4416 Sqft
  • Area Size

1939 HAWAII NE AVENUE, St Petersburg, FL 33703

  • $1,749,000

Description

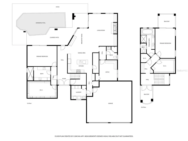
This beautifully updated waterfront residence offers a seamless blend of tropical elegance and modern luxury in the highly sought-after Venetian Isles community. With three spacious bedrooms and three impeccably designed bathrooms, this two-story home is thoughtfully crafted to maximize comfort while showcasing breathtaking views of downtown St. Petersburg. The first floor is designed for both everyday living and entertaining, featuring a chef’s kitchen equipped with premium Sub-Zero appliances, a Wolf gas cooktop and oven, a Bosch dishwasher, a wine refrigerator, granite countertops, backsplash, and a large center island/bar. Elegant travertine flooring flows throughout, leading into the inviting living room anchored by a tiled gas log fireplace and built in glass cabinets, complemented by hurricane-rated windows and doors for added security and peace of mind.
A secondary primary suite on the main level offers a private retreat, complete with a generous walk-in closet and serene views of the pool and waterfront. An additional bedroom—currently used as an office—sits conveniently near a full bathroom just outside its entrance. The entire second floor is dedicated to the expansive primary suite, creating a true sanctuary. This space features an oversized walk-in closet, a private office, and two balconies—one facing the front and one overlooking the rear. The rear balcony captures stunning views of the canal, Tampa Bay, and the downtown skyline. Additional highlights include a water softener/filter, irrigation system, a tankless gas water heater for efficient, on-demand comfort, a spacious three-car garage with upgraded storage, and a grand circular paver driveway. Outdoor living is equally impressive. Boating enthusiasts will appreciate deep sailboat water access, a private dock, boat lift, and a newer seawall. The custom Gunite saltwater pool and spa area, along with multiple balconies, provide the perfect setting for entertaining or simply enjoying peaceful waterfront sunsets. With its luxurious finishes, exceptional layout, and prime location, this home presents a rare opportunity to experience the very best of St. Petersburg waterfront living.

  • Address: 1939 HAWAII NE AVENUE
  • City: St Petersburg
  • State/county: FL
  • Zip/Postal Code: 33703
  • Country: US

Details

Atualizado em abril 21, 2026 no 2:43 pm
  • Property ID TB8488287
  • Price $1,749,000
  • Property Size 4416 m²
  • Land Area 0.24 m²
  • Bedrooms 3
  • Bathrooms 3
  • Garages 3
  • Garage Size x x
  • Year Built 1972
  • Property Type Single Family Residence, Residential
  • Property Status Active, For Sale

Additional details

  • Listing Terms Cash,Conventional
  • Association Fee 200
  • Roof Tile
  • Utilities Cable Connected,Electricity Connected,Natural Gas Connected,Sewer Connected,Water Connected
  • Sewer Public Sewer
  • Cooling Central Air
  • Heating Central
  • Flooring Travertine
  • County Pinellas
  • Property Type Residential
  • Pool Gunite,Heated,In Ground,Lighting,Salt Water
  • Parking Circular Driveway,Driveway,Garage Door Opener,Oversized
  • Elementary School Shore Acres Elementary-PN
  • Middle School Meadowlawn Middle-PN
  • High School Northeast High-PN
  • Community Features Street Lights
  • Waterfront Canal - Saltwater
  • Architectural Style Mediterranean

Mortgage Calculator

360° Virtual Tour

Similar Listings

Compare listings

Comparar