6026 SEASIDE DRIVE, New Port Richey, FL 34652

  • $775,000
  • $800,000

Description

Discover waterfront living at its best in this spacious 3-bedroom, 2-bathroom home spanning three well-designed levels, perfectly situated on a serene canal and complemented by a large yard with endless outdoor potential.

The ground floor offers a three-car garage with ample room for vehicles, storage, and water toys, along with a welcoming covered front porch—perfect for relaxing or greeting guests.

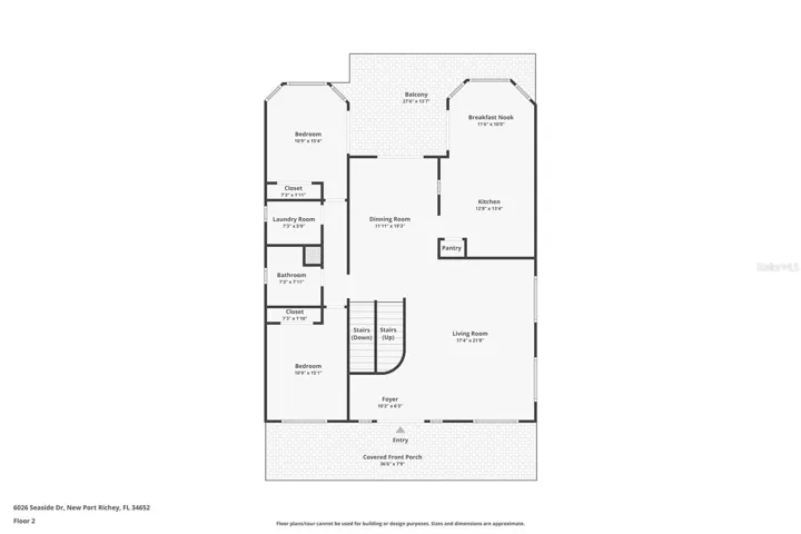
The second floor is the heart of the home, featuring a bright kitchen with breakfast nook, formal dining room, and inviting living room, all ideal for everyday living and entertaining. This level also includes two bathrooms, a separate laundry room, and a large balcony where you can unwind and enjoy tranquil canal views.

The upper floor serves as a private retreat, showcasing a spacious primary bedroom with a walk-in closet, en-suite bathroom, and versatile loft space—ideal for a home office, reading nook, or lounge. A private balcony completes this level, offering peaceful waterfront scenery.

Step outside to enjoy direct canal frontage with a wooden dock equipped with electricity. Boaters will love the impressive setup, including a large boat lift, smaller lift, and manual kayak lift. The smaller lift and kayak lift are constructed of aluminum, while the main lift features wood poles, aluminum beams, and durable Trex-style decking boards, designed for strength and longevity.

With generous indoor space, exceptional boating amenities, a large yard, and a three-car garage, this property offers the perfect blend of comfort, functionality, and waterfront lifestyle.

  • Address: 6026 SEASIDE DRIVE
  • City: New Port Richey
  • State/county: FL
  • Zip/Postal Code: 34652
  • Country: US

Details

Atualizado em abril 24, 2026 no 6:22 pm
  • Property ID TB8471430
  • Price $775,000
  • Property Size 5054 m²
  • Land Area 0.15 m²
  • Bedrooms 3
  • Bathrooms 2
  • Garages 3
  • Garage Size x x
  • Year Built 2000
  • Property Type Single Family Residence, Residential
  • Property Status Active, For Sale

Additional details

  • Listing Terms Cash,Conventional,FHA,VA Loan
  • Association Fee 88
  • Roof Shingle
  • Utilities Electricity Connected,Sewer Connected,Water Connected
  • Sewer Public Sewer
  • Cooling Central Air
  • Heating Central
  • Flooring Other,Tile
  • County Pasco
  • Property Type Residential
  • Elementary School Richey Elementary School
  • Middle School Gulf Middle-PO
  • High School Gulf High-PO
  • Community Features Golf Carts OK,Pool
  • Waterfront Canal - Saltwater

Mortgage Calculator

360° Virtual Tour

Similar Listings

Compare listings

Comparar