3110 CHARLIE TAYLOR ROAD, Plant City, FL 33565

  • $1,299,990
  • $1,360,000

Description

Under contract-accepting backup offers. One or more photo(s) has been virtually staged. One or more photo(s) has been virtually staged.
Brand-new custom modern farmhouse on 1.89 private acres in Plant City… offering space, privacy, and convenience just 30 minutes from Tampa and 40 minutes from Orlando.

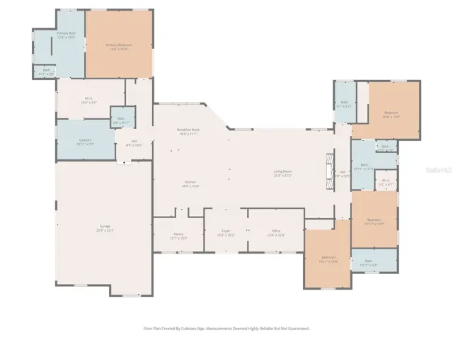
With nearly 3,400 sq ft, this home features 4 bedrooms, 4.5 baths, and an open layout with 18-foot tongue-and-groove ceilings, a stone-accented electric fireplace, and a wet bar with wine refrigerator.

The kitchen is a true focal point with Taj Mahal countertops, warm oak cabinetry, a hidden walk-in pantry, and a 12-foot island. High-end appliances include a double oven, microwave drawer, and 36” gas cooktop.

The primary suite offers a spa-like bath with soaking tub, double shower with rain head, vanity area, and a spacious walk-in closet.

Step outside to a limestone-finished lanai with a heated pool, sun shelf, hot tub, and fully equipped outdoor kitchen—designed for everyday living and entertaining.

Additional features include a dedicated home office, pet wash station, custom closets, three-car garage, no HOA, and agricultural zoning for horses or a hobby farm.

A rare opportunity to own new construction with land in a peaceful setting while staying close to everything.

  • Address: 3110 CHARLIE TAYLOR ROAD
  • City: Plant City
  • State/county: FL
  • Zip/Postal Code: 33565
  • Country: US

Details

Atualizado em abril 26, 2026 no 5:40 pm
  • Property ID TB8463954
  • Price $1,299,990
  • Property Size 5032 m²
  • Land Area 1.89 m²
  • Bedrooms 4
  • Bathrooms 5
  • Garages 3
  • Garage Size x x
  • Year Built 2026
  • Property Type Single Family Residence, Residential
  • Property Status Pending, For Sale

Additional details

  • Listing Terms Cash,Conventional,FHA,USDA Loan,VA Loan
  • Roof Shingle
  • Utilities Electricity Connected,Water Connected
  • Sewer Septic Tank
  • Cooling Central Air
  • Heating Central
  • Flooring Luxury Vinyl,Tile
  • County Hillsborough
  • Property Type Residential
  • Pool Gunite,Heated,In Ground
  • Elementary School Knights-HB
  • Middle School Marshall-HB
  • High School Plant City-HB
  • Community Features None
  • Architectural Style Contemporary,Ranch,Traditional

Mortgage Calculator

360° Virtual Tour

Similar Listings

Compare listings

Comparar