23
  • Property Type
  • Single Family Residence, Residential
  • 5
  • Bedrooms
  • 3
  • Bathrooms
  • 2
  • Garages
  • 3016 Sqft
  • Area Size

1470 GERANIUM DRIVE, Mascotte, FL 34753

  • $452,000
  • $458,549

Description

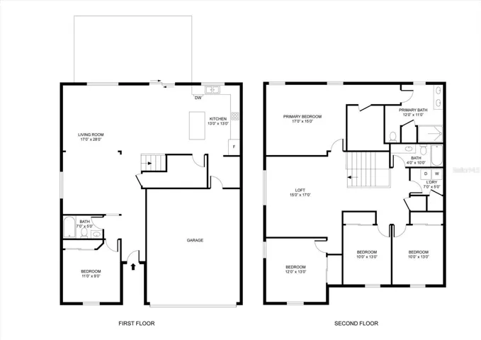
With over 3,000 square feet of living space, this three-year-old, two-story residence offers 9-foot ceilings, two distinct living areas, a two-car garage, and permanent exterior lighting. The home is situated on a corner lot and is just a short distance from the community playground, providing both space and convenience.

The main level features an open layout that connects the living room and kitchen, creating a practical and functional environment for everyday living. The kitchen is appointed with 42-inch cabinetry, laminate countertops, a centre island, stainless-steel appliances, and a generously sized pantry, offering ample storage and workspace.

The second level includes a spacious loft that serves as an additional living area and is surrounded by four bedrooms, including the primary suite. The primary bedroom features a walk-in closet and an en-suite bathroom with a double vanity and a walk-in shower. A dedicated laundry room is conveniently located upstairs, allowing for easy access from all bedrooms.

  • Address: 1470 GERANIUM DRIVE
  • City: Mascotte
  • State/county: FL
  • Zip/Postal Code: 34753
  • Country: US

Details

Atualizado em abril 15, 2026 no 2:51 am
  • Property ID G5106088
  • Price $452,000
  • Property Size 3016 m²
  • Land Area 0.23 m²
  • Bedrooms 5
  • Bathrooms 3
  • Garages 2
  • Garage Size x x
  • Year Built 2023
  • Property Type Single Family Residence, Residential
  • Property Status Active, For Sale

Additional details

  • Listing Terms Cash,Conventional,FHA,VA Loan
  • Association Fee 150
  • Roof Shingle
  • Utilities Electricity Connected
  • Sewer Septic Tank
  • Cooling Central Air
  • Heating Electric
  • Flooring Carpet,Tile
  • County Lake
  • Property Type Residential
  • Middle School Gray Middle
  • High School South Lake High
  • Community Features Deed Restrictions,Playground

Features

Mortgage Calculator

360° Virtual Tour

Similar Listings

Compare listings

Comparar