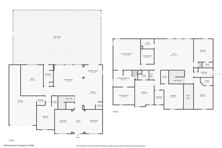
450 TERRAVISTA PLACE, Oviedo, FL 32765

  • $949,000
  • $969,000

Description

Welcome to your dream home! This exquisite residence nestled on a cul-de-sac within the small gated community of Terralago boasts stunning curb appeal, with a Spanish style roof and an extended paver driveway leading to a spacious three car garage. As you step inside, the beautiful foyer with soaring ceilings and crystal chandeliers in the formal living and dining spaces welcome you home. The kitchen is a chef’s delight with shaker cabinets, granite counters accentuated by pendant lighting, newer stainless steel appliances, tile floors, and ample pantry storage. Enjoy casual meals in the breakfast nook, which offers seamless access to the lanai and pool area through elegant glass French doors. Entertainment is a breeze, featuring an in-ceiling speaker system that sets the mood throughout. The main level boasts gleaming wood floors in the living room with stunning pool views, and a large home office/bonus space complete with a double door entry. There’s also a convenient first floor bedroom and adjacent pool bathroom perfect for guests or multi-generational living. Ascend to the second floor to discover a versatile loft space, generously sized with a walk in closet for extra storage. The grand primary suite is a sanctuary of its own with a luxurious chandelier, dual vanities, a relaxing bathtub, a glass door shower, and a walk in closet with custom built ins. Four additional bedrooms with large closets and two well appointed guest baths with tub/shower combos ensure comfort for everyone. Outside, an oasis awaits with a covered porch and screened swimming pool. The backyard is graced by a citrus tree, offering a slice of Florida living at its best. Recent upgrades include a new AC, pool heater, fresh paint inside and out, newer appliances with warranties, and a driveway expansion to fit six vehicles. You’ll be located with quick access to 417, UCF, Orlando International Airport, A rated schools, Publix, and Target. Spend weekends on the green at Tuscawilla Country Club and Golf Course, visit the pinball arcade at the Oviedo Mall, bowl a strike at Oviedo Bowling Center, or reel in a fresh catch on Lake Jesup. There’s endless fun to be had in the surrounding area! Immerse yourself in the 3D virtual tour and schedule a showing to experience this magnificent property in person. This is more than a house, it’s the lifestyle you’ve been waiting for!

  • Address: 450 TERRAVISTA PLACE
  • City: Oviedo
  • State/county: FL
  • Zip/Postal Code: 32765
  • Country: US

Details

Atualizado em abril 24, 2026 no 5:05 pm
  • Property ID O6358853
  • Price $949,000
  • Property Size 5298 m²
  • Land Area 0.27 m²
  • Bedrooms 6
  • Bathrooms 4
  • Garages 3
  • Garage Size x x
  • Year Built 2012
  • Property Type Single Family Residence, Residential
  • Property Status Active, For Sale

Additional details

  • Listing Terms Cash,Conventional,FHA
  • Association Fee 400
  • Roof Tile
  • Utilities Other
  • Sewer Septic Tank
  • Cooling Central Air
  • Heating Electric
  • Flooring Bamboo
  • County Seminole
  • Property Type Residential
  • Pool Heated,In Ground
  • Elementary School Lawton Elementary
  • Middle School Jackson Heights Middle
  • High School Oviedo High

Mortgage Calculator

360° Virtual Tour

Similar Listings

Compare listings

Comparar