39
  • Property Type
  • Single Family Residence, Residential
  • 2
  • Bedrooms
  • 2
  • Bathrooms
  • 2
  • Garages
  • 1962 Sqft
  • Area Size

4299 GOLDCOAST AVENUE, Spring Hill, FL 34609

  • $250,000
  • $305,000

Description

Short Sale. *** SHORT SALE OPPORTUNITY *** Beautifully Updated Pool Home Offering Timeless Florida Living

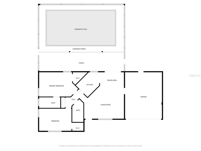
Welcome to your own private retreat—an impeccably updated 2-bedroom, 2-bath pool home that captures the very best of Florida living. Bright, open, and thoughtfully designed, this residence offers effortless comfort and inviting spaces perfect for both everyday living and memorable entertaining.

Soaring cathedral ceilings and an airy, connected floorplan enhance the main living areas, while expansive sliding glass doors frame serene views of the sparkling pool and create a seamless indoor–outdoor experience. The kitchen pairs style with functionality, featuring stainless steel appliances, granite countertops, and generous cabinetry to accommodate every culinary need.

This home has been meticulously cared for, with major updates providing peace of mind for years to come: a newer roof (2017), A/C (2020), water heater (2021), and energy-efficient windows, doors, and sliders installed in 2022. A brand-new pool filter and a spacious two-car garage add to the home’s overall ease and convenience.

Step outside to the private screened lanai—your personal sanctuary for grilling, hosting friends, or simply relaxing by the water in complete privacy. Move-in ready and beautifully maintained, this home delivers comfort, quality, and the relaxed Florida lifestyle you’ve been dreaming of.

  • Address: 4299 GOLDCOAST AVENUE
  • City: Spring Hill
  • State/county: FL
  • Zip/Postal Code: 34609
  • Country: US

Details

Atualizado em abril 28, 2026 no 4:30 pm
  • Property ID S5136307
  • Price $250,000
  • Property Size 1962 m²
  • Land Area 0.2 m²
  • Bedrooms 2
  • Bathrooms 2
  • Garages 2
  • Garage Size x x
  • Year Built 1986
  • Property Type Single Family Residence, Residential
  • Property Status Active, For Sale

Additional details

  • Listing Terms Cash,Conventional,FHA,VA Loan
  • Roof Shingle
  • Utilities Electricity Connected,Water Connected
  • Sewer Septic Tank
  • Cooling Central Air
  • Heating Electric
  • Flooring Carpet,Tile
  • County Hernando
  • Property Type Residential
  • Pool In Ground,Screen Enclosure
  • Elementary School Explorer K-8
  • Middle School Fox Chapel Middle School
  • High School Frank W Springstead

Mortgage Calculator

360° Virtual Tour

Similar Listings

Compare listings

Comparar