31
  • Property Type
  • Manufactured Home - Post 1977, Residential
  • 3
  • Bedrooms
  • 2
  • Bathrooms
  • 1668 Sqft
  • Area Size

12803 CLIFFSIDE PLACE, Thonotosassa, FL 33592

  • $280,000
  • $285,000

Description

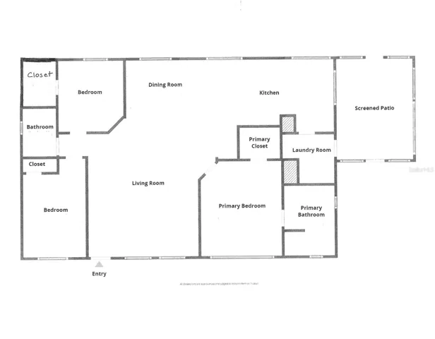
Nestled in serene Pine Ridge Estates, this charming home offers a perfect blend of country tranquility and urban convenience, just minutes from major interstates and local amenities. Situated on a spacious lot, the home boasts abundant natural light and an open floor plan with a split bedroom design. The kitchen is a chef’s delight, featuring ample cabinet and counter space, newer appliances, and a convenient pass-through to the dining area for easy entertaining.The primary bedroom is generously sized with a large walk-in closet. The primary bathroom is a retreat in itself, complete with dual sinks, a garden tub, and a separate shower. The home also includes a laundry room with additional storage and cabinetry, and a washer and dryer are part of the sale.Throughout the home, vaulted ceilings add to the sense of space, and new luxury vinyl flooring was installed in October 2023. Recent updates include a fresh interior paint job in September 2023, a new A/C system in April 2023, and a roof that is approximately 5 to 7 years old. The screened/glassed-in patio offers a peaceful spot to relax or entertain guests.The neighborhood is pedestrian-friendly with sidewalks throughout, and nearby parks provide opportunities for biking, hiking, boating, and enjoying Florida’s natural beauty. Conveniently located near the University of South Florida, Busch Gardens, MOSI, VA, Advent Health, Moffitt and Shriners Hospitals, and local dining and shopping, this home is also just minutes from I-75 for easy commutes.The owner is willing to include the loveseat, couch, two guest bedroom beds, aquarium, push mower, gas grill, and ladder with the sale or have them removed if preferred by the buyer. This home is a perfect blend of comfort, convenience, and charm.

  • Address: 12803 CLIFFSIDE PLACE
  • City: Thonotosassa
  • State/county: FL
  • Zip/Postal Code: 33592
  • Country: US

Details

Atualizado em outubro 1, 2024 no 9:06 pm
  • Property ID T3528239
  • Price $280,000
  • Property Size 1668 m²
  • Land Area 0.49 m²
  • Bedrooms 3
  • Bathrooms 2
  • Garage Size x x
  • Year Built 2000
  • Property Type Manufactured Home - Post 1977, Residential
  • Property Status Closed

Additional details

  • Listing Terms Cash,Conventional,FHA,USDA Loan,VA Loan
  • Association Fee 175
  • Roof Shingle
  • Utilities Cable Connected,Electricity Connected
  • Sewer Septic Tank
  • Cooling Central Air
  • Heating Central
  • Flooring Carpet,Vinyl
  • County Hillsborough
  • Property Type Residential
  • Elementary School Thonotosassa-HB
  • Middle School Jennings-HB
  • High School Armwood-HB
  • Community Features Sidewalks
  • Architectural Style Other

Mortgage Calculator

360° Virtual Tour

Similar Listings

Compare listings

Comparar